Icon

Our Projects

National & International Engineering Expertise

International Projects

Canada
Airport & Torbram Road, Brampton — Highway Design
Client: City of Brampton

Planning and layout of transportation corridors including all allied works of drainage, design, etc. (individual experience as engineer in Stantec Canada).

Canada
HEC-RAS Modelling — Brampton Major Road Widening
Client: City of Brampton

Drainage design and modelling (using HEC-RAS) in support of roads/Major transportation corridors (experience at Stantec Canada).

Canada
SWM Pond, Highway-48, Stouffville, GTA
Client: Town of Stouffville

Concept, planning, layout, engineering, design, and plan-production of a Stormwater Management Pond for commercial development.

Canada
Wilson Drain Watershed Modelling, Alliston
Client: Municipality of Tecumseth

Set up Hydrology and Hydraulics models (SWMMHYMO and HEC-RAS) to evaluate runoff detention and downstream flooding effects.

Canada
Civil Design for Residential & Institutional Developments
Client: City of Toronto

Planning, layout, engineering and design of Civil Design components, Grading, Servicing, Utilities and SWM Plans.

Canada
Civil Design for Commercial Developments (Wal-Mart)
Client: Wal-Mart, Canada

Civil Design components, Grading, Servicing, Utilities and SWM Plans for Wal-Mart and other Big-Box Commercial Developments.


Other Projects

Sewerage
Sewerage Network and Pumping Stations
Client: Sub Contract as Designer

Sewerage network design & pumping stations for resettlement colony at Rakhi-Arth for Dal dwellers. DPR submitted to LAWWDA.

Drainage
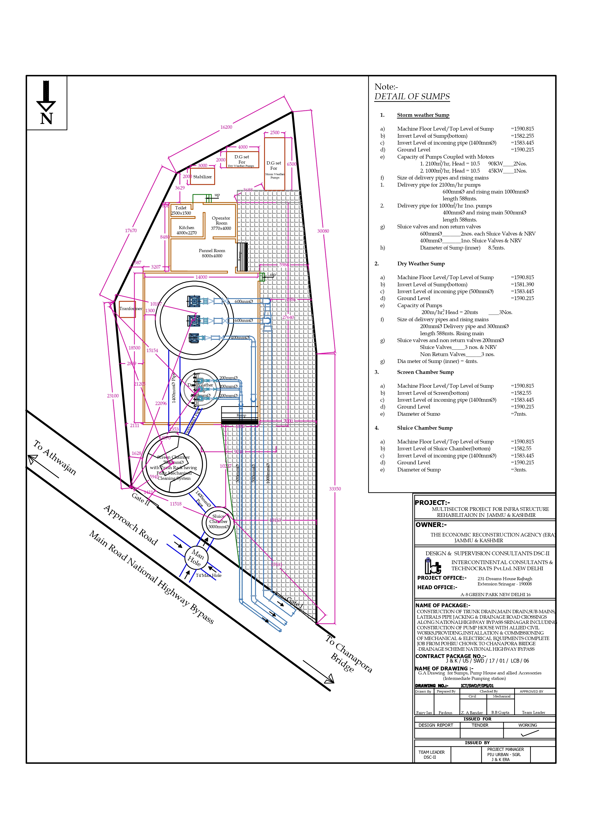
Drainage Network & Pumping Station (Pohru–Chanpora)
Client: Sub Contract as Designer

Drainage network and pumping stations under ADB funding; included electro-mechanical works.

Hydel
EMP for Athwatho Micro-hydel Project
Client: Magpie Hydel Constructions Pvt Ltd

Environment Management Plan for first micro-hydel project under IPP arrangement in the State.

Water Security
District Water Security Plans (6 districts)
Client: Sub Contract as Designer

Prepared District Water Security Plans under National Rural Drinking Water Program for six districts of Kashmir Valley.

Tourism
Eco-Tourist Resort at Mammar
Client: Sub Contract as Designer

Eco-friendly resort design with 100 rooms, auditorium & arts centre; sustainable onsite renewable power generation.

Hydraulic
Design of Weir at Chattabal
Client: Tariq Construction Company

Planning and Design of the Weir at Chattabal including hydraulic and structural design.

Road
Survey & Material Testing — 4-Laning of NH
Client: Sub Contract as Designer

Survey and material testing for 4-laning of National Highway — part of a ₹9000 Crore infrastructure project.

Industrial Development
Planning and Design of Khunmoh Industrial Estate — Phase III
Client: SIDCO (Sub Contract as Designer)

Planning and layout design for Phase III of Khunmoh Industrial Estate, including utility planning with special focus on water supply systems for the estate.

Water Supply Engineering
DPR for Revamping of 4 MGD Water Treatment Plant, Pokhribal — Srinagar
Client: Water Supply Master Plan, Kashmir (PHE Department, J&K)

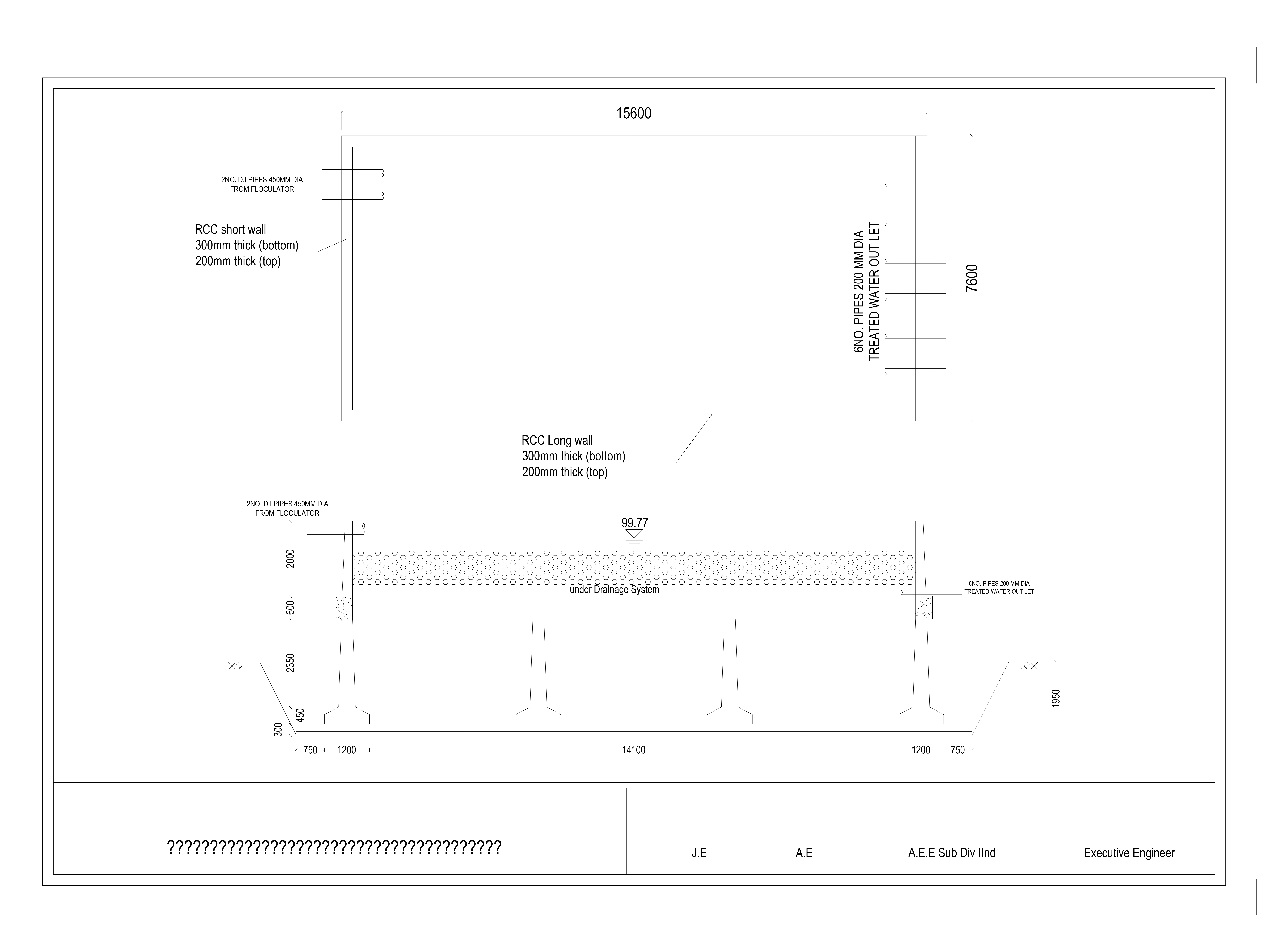
Preparation of Detailed Project Report for revamping the 4 MGD Water Treatment Plant at Pokhribal, including hydraulic design, structural design, cost estimation and infrastructure upgrading under the Water Supply Master Plan, J&K.

Water Treatment & Quality Engineering
DPR for Activated Carbon Treatment Plant — Pokhribal, Srinagar
Client: Water Supply Master Plan, Kashmir (PHE Department, J&K)

DPR preparation and construction supervision for Activated Carbon Treatment Plant at the 4 MGD WTP, including geotechnical investigations, ETS, hydraulic and structural design, and cost estimation under the Water Supply Master Plan, J&K.

Hydropower Engineering
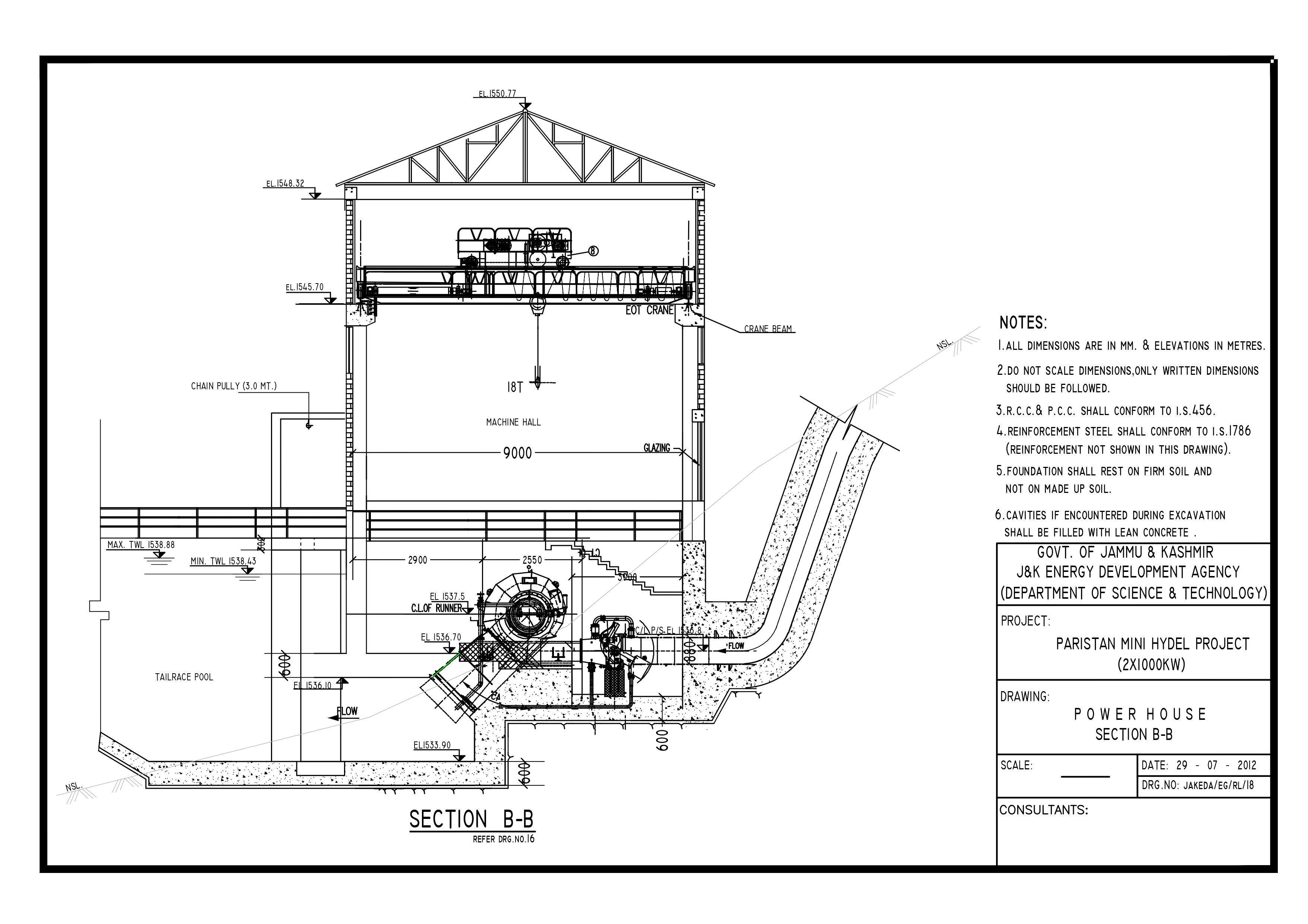
DPR for Micro Hydel Projects — Jammu & Kashmir
Client: Sub Contract as Designer (JAKEDA)

Preparation of Detailed Project Reports for multiple Micro Hydel Projects across J&K, including hydrological assessment, hydraulic analysis, and comprehensive engineering design.

Transportation Engineering
Road Design (Complete DPR) under ERA / PMGSY
Client: Sub Contract as Designer – CCDG Consultants, Srinagar

Preparation of complete DPRs for major road development works including: Bani Dhaggar (Jammu), Sakhi Maidan (Jammu), Tosa Maidan (Kashmir), Kandi Keller (Kashmir) and Shumlaran (Kashmir).

Disclaimer:Various projects listed herein were completed by the principal engineer/engineers as part of a project team during prior engagement with other organizations, and are not cited for any claim or ownership, but for individual past performance, professional experience, capability and skill set only.